Skip to content
Hope Church of Tipton
Where New Life Begins
Menu
Home
What We Believe
Building Program
Ministries
Youth Ministry
Childrens Ministries
Meet Our Staff
Resources
Live Video Sermons
Online Audio Sermons
Facebook Page
Contact Us
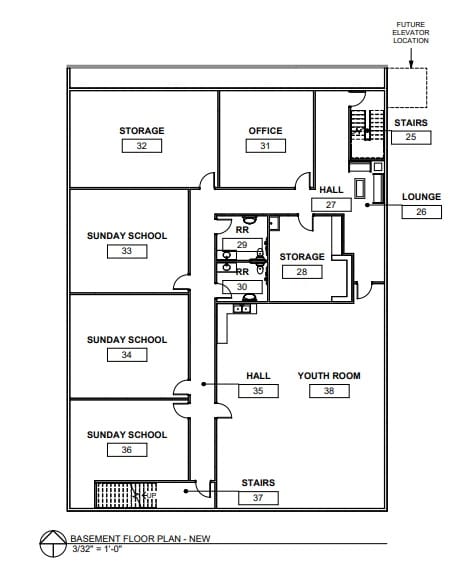
new addition basement schematic